Quarto | Ampio box doppio di MQ.29,20 nuova costruzione, comodo doppio ingresso

70.000 €
29,2 m2
Codice
VCBOX1
Città
Genova (Quarto)
Categoria
Garage
Locali
1
Box
1
Posti auto
2
Classe energetica
Non applicabile
Stato Immobile
Nuovo
Grado
Medio
Pavimento
Cemento
Tipo Saracinesca
Elettrica
Accessori
Cancello Elettrico, Passaggio Automobilistico
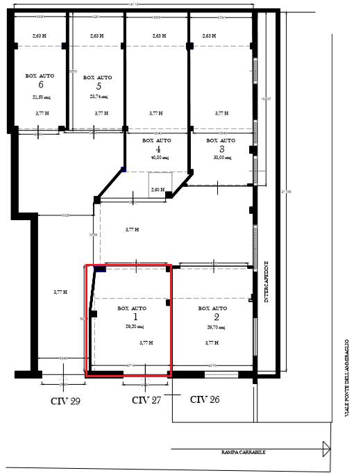
QUARTO (Viale Ponte dell'Ammiraglio)

Rif.: BOX1
Proponiamo in esclusiva AMPIO BOX AUTO DOPPIO di MQ.29,20 di nuova costruzione, sicuro, asciutto, non allagabile.
L'immobile è caratterizzato da un doppio ingresso, uno indipendente, l'altro nel corridoio di manovra interno al contesto.
Misure interne :
Lunghezza Mt. 6,20 circa
Larghezza Mt. 4,71 circa
Altezza soffitti Mt. 3,77 circa (con possibilità di soppalco)
Il varco di ingresso indipendente è largo Mt. 2,62
Il varco di ingresso nel corridoio di manovra intero al contesto è Mt. 3,58
Il box è dotato di doppia serranda elettrica telecomandata, punto luce con presa di corrente e lavandino condominiale.

In alcuni casi le immagini potrebbero essere state migliorate con l'ausilio dell'AI per meglio rappresentare la proposta.
Invitiamo la Spettabile Clientela a verificare le reali condizioni dell'immobile.

Per informazioni e visite telefonare al n. 0103760134
Valutiamo gratuitamente il Vostro immobile, contattateci per un sopralluogo immediato.

Foto ed informazioni qui contenute hanno scopo illustrativo e non costituiscono elemento contrattuale.
Le eventuali planimetrie non sono in scala, ma puramente rappresentative degli spazi interni.
Condizioni e disponibilità della proposta sono soggette a variazione.

Fratelli COSTANZO
Agenti Immobiliari dal 1955
www.fratellicostanzo.com
info@fratellicostanzo.com

Condividi

Cookie preference